Home
About Us
Projects
Window and Curtain Wall
Balustrade
Products
Service
Contact Us
Product
Product Blog Post
Home
Products
Product Blog Post
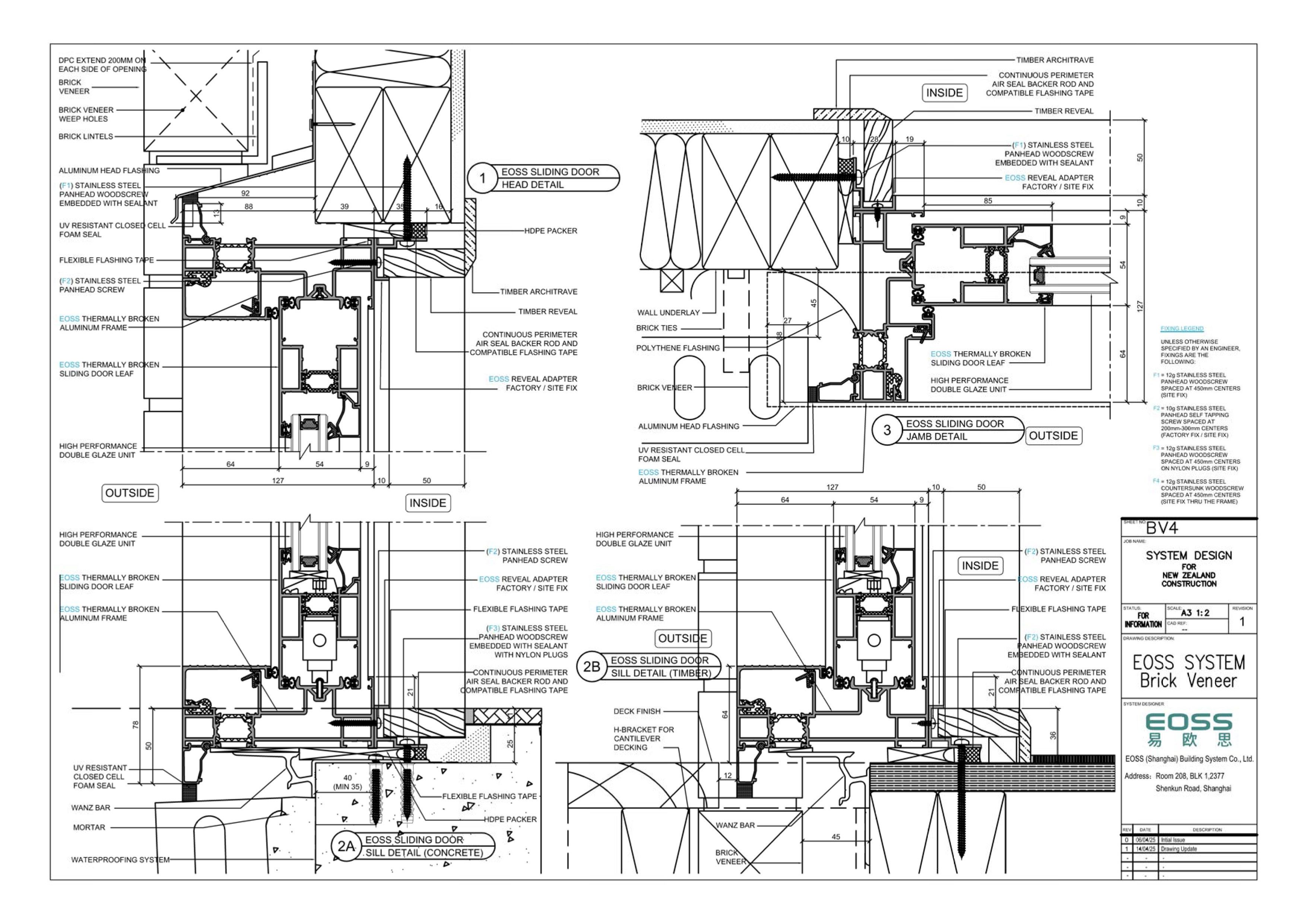
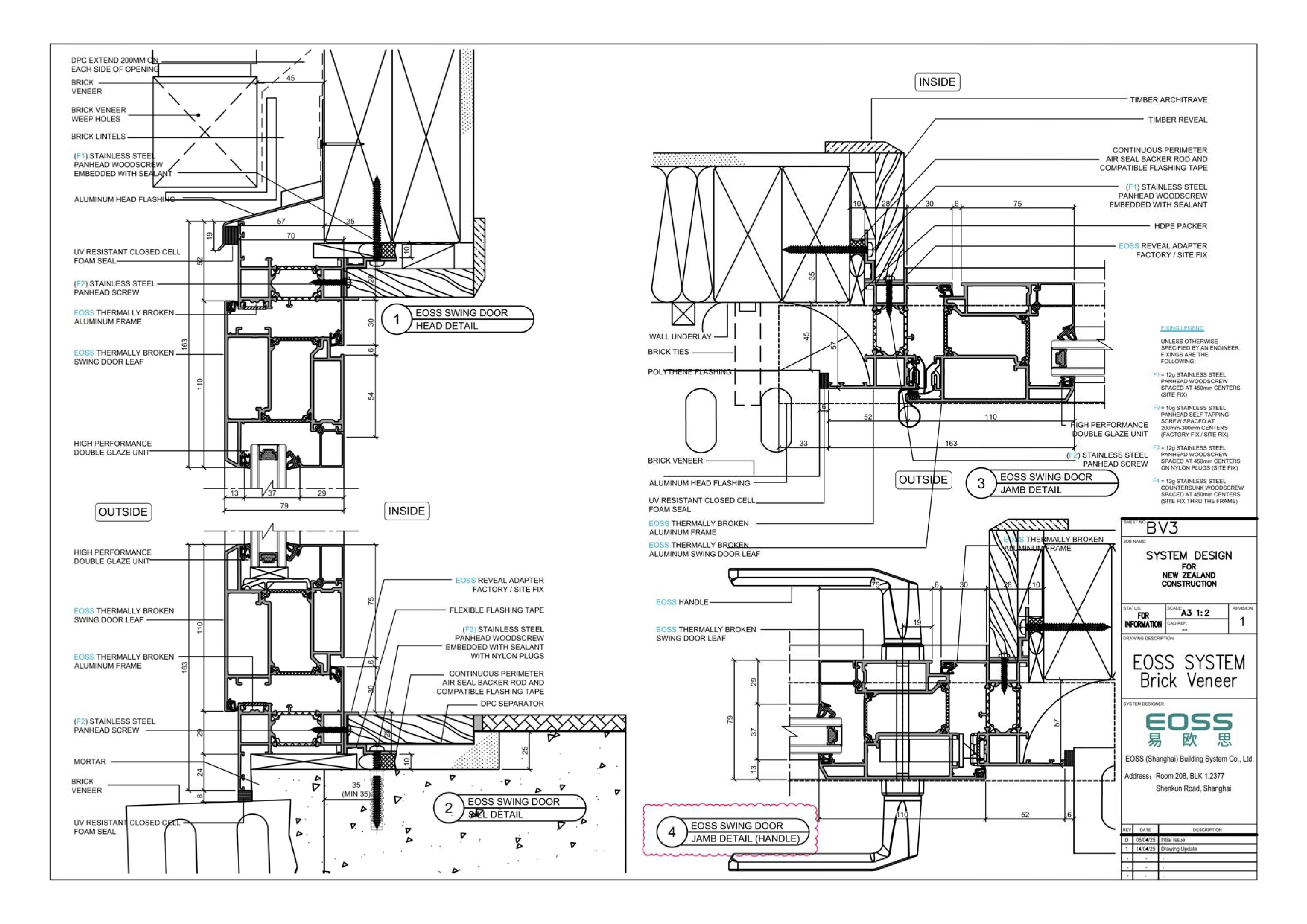
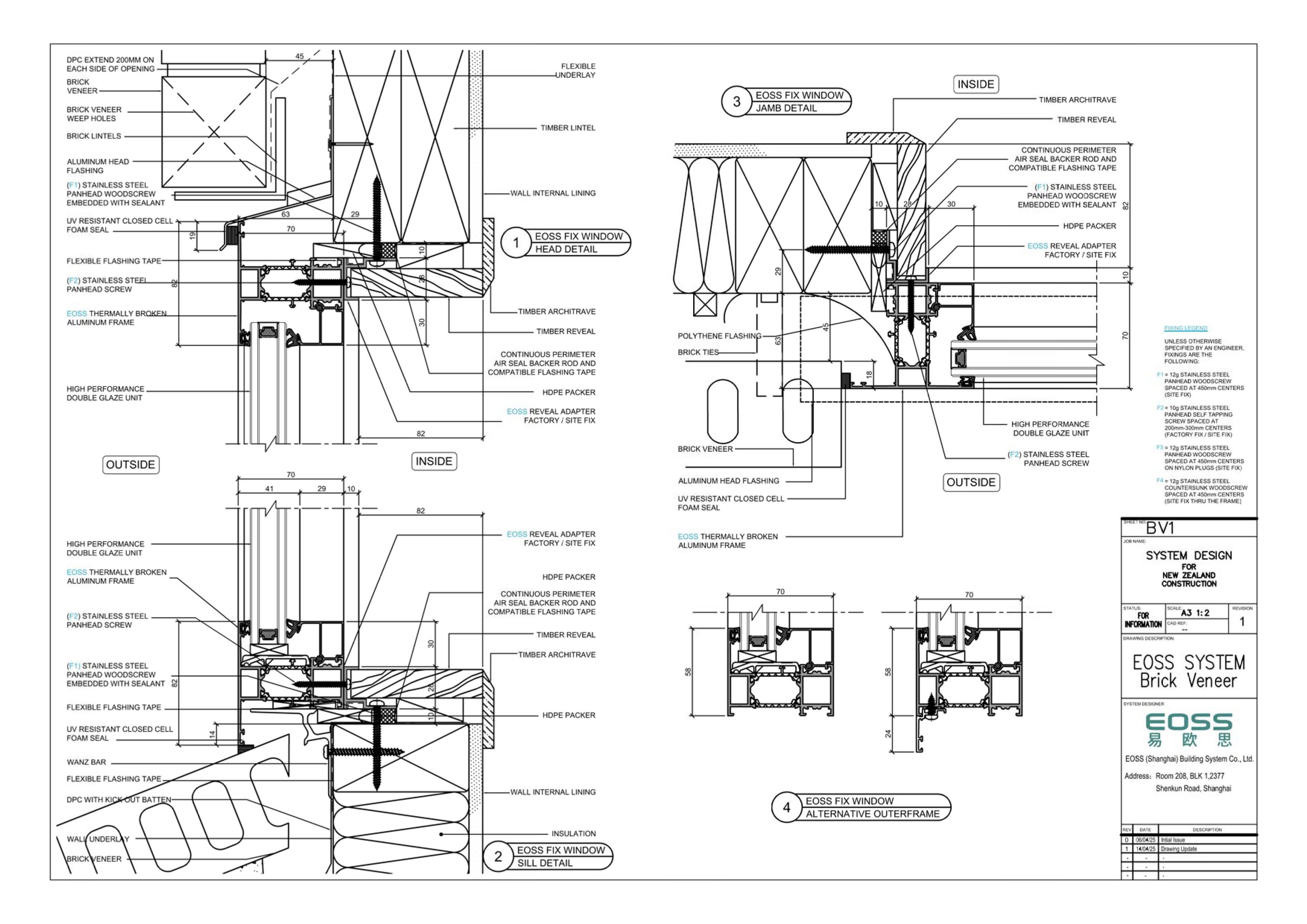
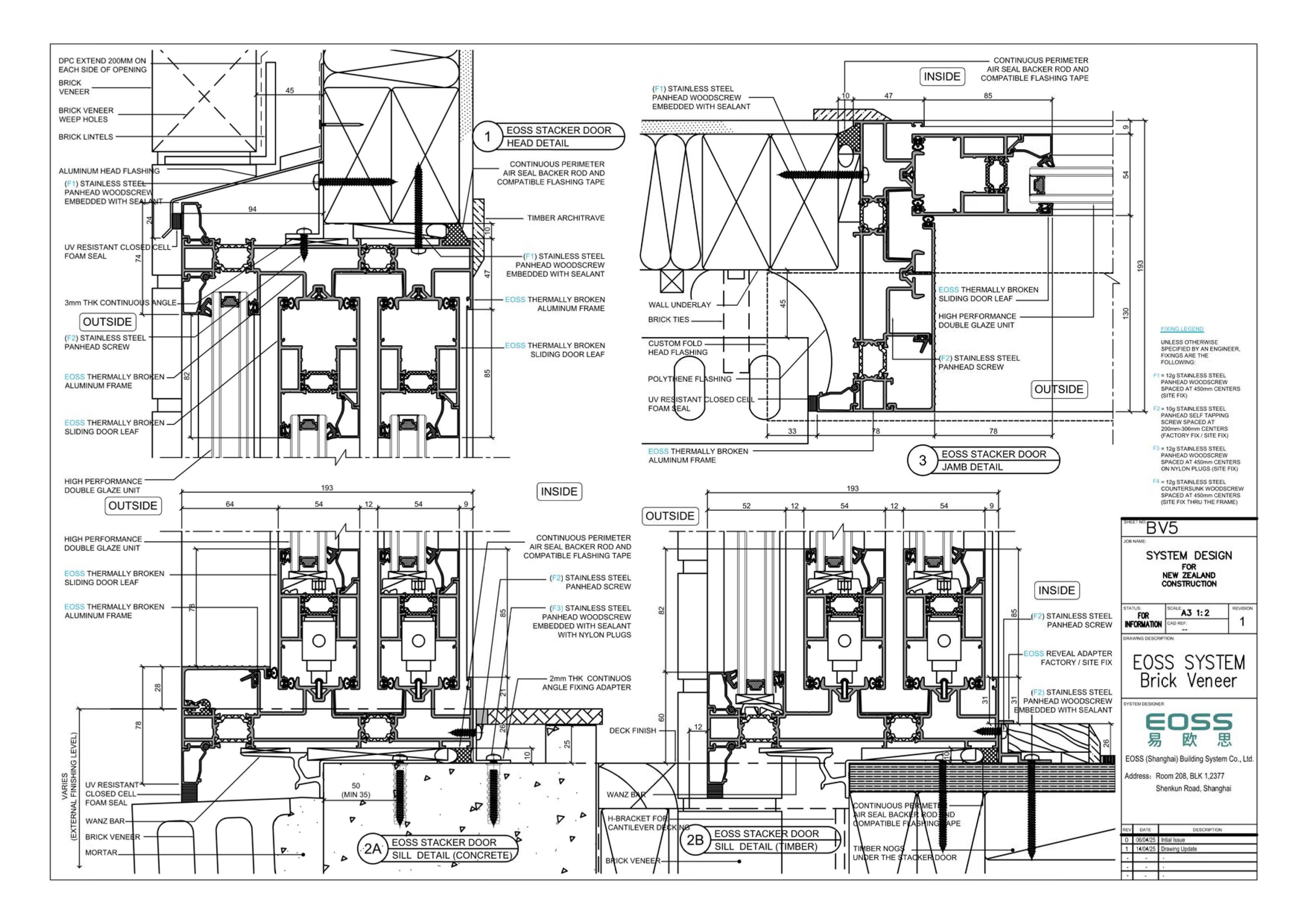
BFS EOSS EBV1 Series
Send a Comment
First Name
Last Name
E-mail
Phone
Your Message
Submit